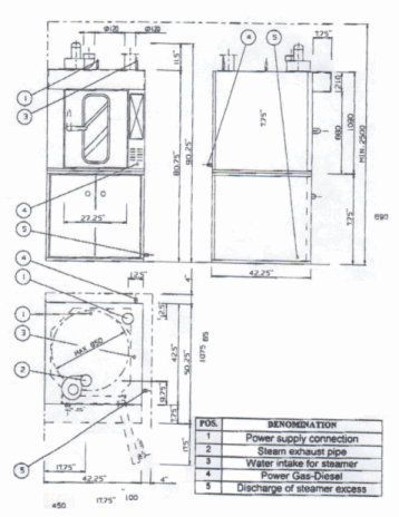
Mini Combo -- Versatile
-- Compact
-- Mini Rack Upper Chamber (Gas or Electric)
-- Great Steam Throughout
-- Optional Proofbox
-- Available on Stand
Mini Combo Plus -- Versatile
-- Compact
-- Mini Rack Upper Chamber (Gas or Electric)
-- Mini Electric Deck Oven
-- Great Steam Throughout
-- Optional Proofbox
-- Available on Stand